产品推荐

产品栏目

GXF、SJG 系列斜流式通风机
GXF、SJG 系列斜流式通风机


一、GXF、SJG系列斜流式通风机概述

GXF、SJG系列斜流式通风机是由上海交通大学与本公司联合研制开发。GXF斜流式通风机是一种新型低噪高效节能型斜流式通风机,斜流式通风机流量大于离心式风机,全压高于轴流式风机,体积小于离心式风机。该风机通过了模拟机的实验研究,采用新的叶型及叶片,从而得到了更大的流量和压力,提高了风机的效率。SJC系列斜流式通风机是SWF系列风机的派生型产品,采用鼓型风筒,从而改变气流方向达到斜流动,兼有离心式风机的压力系数较高和轴流式风机流量系数较高的特点,具有噪声低、耗电省、结构紧凑等优点。广泛应用于工矿企业、宾馆、饭店、博物馆等的送排风系统。

GXF系列斜流通风机按叶轮直径分为300-1400mm十六种规格,按类型分A、B、C、D、E、F、S七种类型,共五十八个机号。风量由1500-90000m3/h,全压由185-2500pa;这样就给设计部门和用户单位提供了充分的选择条件,具体数据参照风机性能参数表。

 SJG系列斜流式通风机按叶轮直径分为200-800mm十几种规格、机号,风量由200-2500m3/h,全压由50-1200pa;具体数据请查风机性能参数表。

风机材质有钢制、玻璃钢,也可根据用户要求,进行防爆处理。

二、GXF、SJG系列斜流式通风机型号说明

聚强通风样本_page-0065_看图王_看图王.jpg

三、GXF系列斜流风机性能参数表

机号

叶轮直径

(mm)

风量(m3/h)

全压 (Pa)

功率(kw)

转速

(r/min)

噪声 dB(A)

重量 (kg)

3A

300

2352

115

0.18

1450

69

26

2234

138

1960

156

1764

162

1588

165

3.5A

350

3600

118

0.25

1450

69

30

3420

135

3000

160

2700

166

2430

170

4A

400

3984

164

0.37

1450

71

34

3785

187

3320

220

2988

235

2689

242

4.5A

450

5544

183

0.55

1450

72

41

5267

208

4620

245

4158

262

3742

270

5A

500

5232

264

0.75

1450

75

52

4970

310

4360

360

3924

385

3532

396

5.5A

550

6384

330

1.1

1450

77

66

6065

378

5320

440

4788

471

4309

484

6A

600

9120

338

1.5

1450

78

67

8664

387

7600

450

6840

482

6165

495

6.5A

650

14880

291

2.2

960

79

96

14135

334

12400

386

11160

405

10044

413


机号

叶轮直径

(mm)

风量(m3/h)

全压 (Pa)

功率(kw)

转速

(r/min)

噪声 dB(A)

重量 (kg)

7A

700

16800

371

3

960

82

129

15960

426

14000

492

12600

517

11340

526

8A

800

22080

387

4

960

83

149

20976

443

18400

512

16560

553

14904

568

9A

900

26160

464

5.5

960

84

200

24852

531

21800

610

19620

665

17658

683

10A

1000

30240

555

7.5

960

86

290

28728

635

25200

730

22680

796

20412

818

11A

1100

33067

570

7.5

960

86

307

31413

653

27556

750

24800

818

22320

840

12A

1200

38880

646

11

960

88

362

36936

740

32400

850

29160

927

26244

952

13A

1300

51600

676

15

960

89

448

49020

 774

43000

890

38700

970

34830

997

14A

1400

60000

722

18.5

720

90

659

57000

827

50000

950

45000

1036

40500

 1064


GXF-B型斜流风机性能参数表

机号

叶轮直径

(mm)

风量(m3/h)

全压 (Pa)

功率(kw)

转速

(r/min)

噪声 dB(A)

重量 (kg)

3B

300

2064

126

0.18

1450

68

26

1961

144

1720

170

1548

177

1393

180

3.5B

350

3048

141

0.25

1450

70

30

2896

161

2540

190

2286

198

2057

201

4B

400

3480

186

0.37

1450

71

34

3306

213

2900

250

2610

268

2349

275

4.5B

450

4380

231

0.55

1450

73

41

4161

264

3650

310

3285

322

2957

329

5B

500

6864

300

1.1

1450

77

56

6521

344

5720

400

5148

428

4633

440

5.5B

550

 7680

371

1.5

1450

79

70

7296

426

 6400

495

5760

515

5184

525

6B

600

11280

375

2.2

1450

80

81

10716

430

9400

500

8460

535

7614

550

6.5B

650

3680

430

3

1450

82

89

2996

493

11400

570

10260

616

9234

633

机号

叶轮直径

(mm)

风量(m3/h)

全压 (Pa)

功率(kw)

转速

(r/min)

噪声 dB(A)

重量 (kg)

7B

700

19680

415

4

960

83

139

18696

476

16400

550

14760

578

13284

589

8B

800

27600

423

5.5

960

84

160

26220

485

23000

564

20700

603

18630

626

9B

900

32520

509

7.5

960

86

211

30894

583

27100

670

24390

710

21951

730

10B

1000

38400

635

11

960

88

315

36480

727

32000

836

28800

886

25920

911

11B

1100

40320

616

11

960

88

332

38304

 705

33600

810

30240

883

27216

907

12B

1200

46200

739

15

960

90

402

43890

846

38500

 972

34650

1059

31185

 1089

13B

1300

52320

806

18.5

960

91

497

49704

922

43600

1060

39240

1155

35316

1187

14B

1400

64800

798

22

960

91

543

61560

914

54000

1050

48600

1145

43740

1176

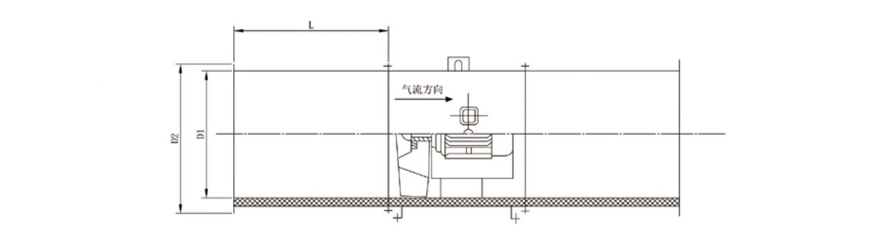
四、GXF系列斜流风机外形及安装尺寸(mm)

聚强通风样本_page-0074_看图王_看图王.jpg

机号

类别

D1

D2

D3

L

M1

M2

N1

N2

n-Φa

Φb

H

3

ABCDEF

Φ310

Φ340

Φ380

320

261

225

220

170

8-Φ8.5

Φ11

220

3.5

ABCDEF

Φ360

Φ390

Φ430

320

261

225

220

170

8-Φ11

Φ11

245

F

400

336

300

4

ABCD

Φ410

Φ450

Φ485

340

294

250

300

240

8-Φ11

Φ11

265

E

400

344

300

F

480

394

350

4.5

ABCD

Φ460

Φ500

Φ540

360

394

250

300

240

12-Φ11

Φ11

295

EF

480

394

350

5

ABCDE

Φ510

Φ550

Φ590

420

344

300

400

320

12-Φ11

Φ13

315

F

560

444

400

5.5

ABCD

Φ560

Φ600

Φ640

420

344

300

400

320

12-Φ11

Φ13

355

EF

560

444

400

6

ABCD

Φ610

Φ650

Φ694

450

377

325

500

400

12-Φ11

Φ16

380

E

500

427

375

F

700

552

500

6.5

ABC

Φ660

Φ700

Φ744

450

377

325

500

400

16-Φ11

Φ16

400

DE

520

427

375

F

700

552

500

7

ABCD

Φ710

Φ750

Φ800

540

462

400

600

480

16-Φ11

Φ16

425

EF

680

562

500

8

ABC

Φ810

Φ850

Φ900

540

462

400

600

480

16-Φ13

Φ16

490

DE

680

560

500

F

760

612

550

9

AB

Φ910

Φ950

Φ1010

650

537

475

700

580

16-Φ13

Φ16

550

CDE

740

587

525

F

800

637

575

10

ABCD

Φ1010

Φ1060

Φ1110

740

587

525

700

580

20-Φ13

Φ16

615

E

800

637

575

F

950

762

700

11

ABCD

Φ1110

Φ1160

Φ1230

750

620

550

800

650

20-Φ13

Φ16

645

E

820

670

600

F

900

720

650

12

AB

Φ1210

Φ1260

Φ1330

780

645

575

900

750

20-Φ13

Φ19

700

CD

820

670

600

EF

980

770

700

13

ABC

Φ1310

Φ1370

Φ1430

860

695

625

900

750

20-Φ13

Φ19

750

D

950

770

700

EF

1080

845

775

14

ABC

Φ1410

Φ1470

Φ1534

950

768

700

1000

850

20-Φ13

Φ19

800

D

1020

818

750

EF

1140

893

825

五、GXF-BX消声型斜流风机

GXF-BX消音型斜流风机分为两种: GXF-BX1型风机外壳不带消声器, GXF-BX2型风机外壳,进、出风口均带消声器。风机外壳带消声器可消音3-5分贝;进、出风口各带500mm消声器,可消音3-8分贝;进、出风口各带750mm消声器,可消音5-11分贝;进、出风口各带 1000mm消声器,可消音8-14分贝;进、出风口各带2000mm消声器,可消音11-17分贝;消声器长度有500mm, 750mm, 1000mm, 2000m,用户可根据需要自定长度。

聚强通风样本_page-0076_看图王.jpg

GXF-BX1消声型斜流风机安装尺寸(mm)

机号

3

3.5

4

4.5

5

5.5

6

6.5

7

8

9

10

11

12

13

14

D1

Φ310

Φ360

Φ410

Φ460

Φ510

Φ560

Φ610

Φ660

Φ710

Φ810

Φ910

Φ1010

Φ1110

Φ1210

Φ1410

Φ1410

D2

Φ380

Φ430

Φ485

Φ540

Φ590

Φ640

Φ694

Φ744

Φ800

Φ900

Φ1010

Φ1110

Φ1230

Φ1330

Φ1434

Φ1534


聚强通风样本_page-0076_看图王_看图王.jpg

GXF-BX2消声型斜流风机安装尺寸(mm)

机号

3

3.5

4

4.5

5

5.5

6

6.5

7

8

9

10

11

12

13

14

D1

Φ310

Φ360

Φ410

Φ460

Φ510

Φ560

Φ610

Φ660

Φ710

Φ810

Φ910

Φ1010

Φ1110

Φ1210

Φ1310

Φ1410

D2

Φ410

Φ460

Φ510

Φ560

Φ610

Φ660

Φ710

Φ760

Φ810

Φ910

Φ1010

Φ1110

Φ1210

Φ1310

Φ1410

Φ1510

D3

Φ480

Φ530

Φ585

Φ640

Φ690

Φ740

Φ794

Φ844

Φ900

Φ1000

Φ1110

Φ1210

Φ1330

Φ1430

Φ1534

Φ1634

备注: GXF-BX1. GXF-BX2均以散装形式供货。若用户没有注明,本公司一般不在法兰上打孔,敬请用户注意

六、SJG系列斜流风机概述

SJG型斜流风机,采用鼓形风筒,从而改变气流方向达到斜流,兼有离心式压力系数较高和轴流风机流量系数较大的特点。具有噪声低、耗电省、结构紧凑等特点。

风机按叶轮机号分为200~800mm十几种规格,系列风量由200-25000m3/h,全压由50~1200pa.为满足用户对不同工况点性能调节的需要,可配用变频电机和变频控制器实现无级调速,建议调节频率锁定,在25Hz~50Hz。

为适应防爆环境需要,风机可做成防爆风机,按防爆风机规范制作。

为适应不同场所噪声的要求,风机均可配不同长度的消声器,也可将风机做成包覆式(壳体消音)。

七、SJG系列斜流风机应用

风机可广泛应用于民用建筑、工矿企业、宾馆、饭店、博物馆、体育馆等通风换气场所,特别适用于管道安装空间较小的地方。

八、SJG系列斜流风机性能参数表

机号

风量(m3/h)

全压 (Pa)

功率(kw)

转速

(r/min)

噪声 dB(A)

重量 (kg)

2F

200

110

0.06

1450

58

16

400

91

500

70

600

54

2.5F

300

180

0.18

1450

60

24

450

165

600

150

1000

110

3F

500

260

0.37

1450

61

27

750

240

1500

170

2000

130

3.5S

800

140

0.25

960

59

42

1500

100

2000

80

2500

50

3.5F

1000

320

0.55

1450

61

45

2000

250

3000

190

4000

110

4S

1000

190

0.37

960

60

61

2000

150

3000

100

4000

51

4F

1500

420

0.75

1450

62

67

2500

390

4000

280

5000

220

4.5S

1500

360

0.37

960

61

70

3000

275

4000

150

5000

100

4.5F

2000

580

1.1

1450

68

80

4000

480

6000

350

7000

250

机号

风量(m3/h)

全压 (Pa)

功率(kw)

转速

(r/min)

噪声 dB(A)

重量 (kg)

5S

1500

360

0.75

960

63

90

2500

290

4000

240

6000

150

5F

2000

710

2.2

1450

69

110

4000

580

7000

480

10000

345

6S

3000

480

1.5

960

65

150

6000

360

8000

297

11000

240

6F

4000

1200

5.5

1450

75

165

8000

870

12000

690

18000

380

7S

4000

600

3

960

72

215

8000

500

15000

350

18000

260

8E

6000

700

4

720

68

372

10000

585

15000

510

25000

210

8S1

6000

780

5.5

960

71

320

10000

700

15000

600

25000

400

8S2

6000

880

7.5

960

72

360

10000

790

15000

685

25000

510

九、SJG-BX消声型斜流风机

SJG-BX消音型斜流风机分为两种: SJG-BX1型风机外壳不带消声器, SJG-BX2型风机外壳,进、出风口均带消声器。风机外壳带消声器可消音3-5分贝;进、出风口各带500mm消声器,可消音3-8分贝;进、出风口各带750mm消声器,可消音5-11分贝;进、出风口各带 1000mm消声器,可消音8-14分贝;进、出风口各带2000mm消声器, 可消音11-17分贝;消声器长度有500mm, 750mm, 1000mm, 2000mm,用户可根据需要自定长度。

聚强通风样本_page-0078_看图王_看图王.jpg

SJG-BX1消声型斜流风机安装尺寸(mm)

机号

2

2.5

3

3.5

4

4.5

5

6

7

8

D1

Φ210

Φ260

Φ310

Φ360

Φ410

Φ460

Φ510

Φ610

Φ710

Φ810

D2

Φ280

Φ330

Φ380

Φ430

Φ485

Φ540

Φ590

Φ694

Φ800

Φ900

 

聚强通风样本_page-0078_看图王(1)_看图王.jpg

SJG-BX2消声型斜流风机安装尺寸(mm)

机号

2

2.5

3

3.5

4

4.5

5

6

7

8

D1

Φ210

Φ260

Φ310

Φ360

Φ410

Φ460

Φ510

Φ610

Φ710

Φ810

D2

Φ280

Φ330

Φ380

Φ430

Φ485

Φ540

Φ590

Φ694

Φ800

Φ900

D3

Φ380

Φ430

Φ480

Φ530

Φ585

Φ640

Φ690

Φ794

Φ900

Φ1000

备注: SJG-BX1. SJG-BX2均以散装形式供货。若用户没有注明,本公司一般不在法兰上打孔,敬请用户注意